916 Oceanfront, Newport Beach, CA 92661
Active
$6,995,000
9%
Units
5 Beds
4 Baths
2,501 Area(sq.ft.)
Lot: 2,614 Lot Size(sq.ft.)
| Type | # of Units | Bedroom | Bath | Furnished | Rent | Actual Rent | Projected Rent |
|---|---|---|---|---|---|---|---|
| 0 | $ 0 | $ 0 | $ 0 |
| MLS #: | OC25074181MR |
| Days On Market: | 247 |
| Listing Date: | April 11, 2025 |
| County: | Orange County |
| Property Type: | Residential Income |
| Price per ft2: | $ 2,797 |
| Year Built: | 1972 |
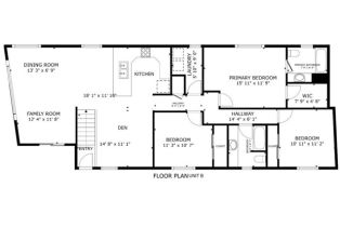
Property Details
$305K PRICE IMPROVEMENT! - Discover the coastal dream at 916 E Oceanfront a rare and completely remodeled oceanfront duplex perched right on the iconic boardwalk, where the sand, surf, and vibrant Balboa lifestyle beckon. This prime property offers two distinct gem units! The lower unit features a chic 2-bedroom, 2-bath retreat with coveted STLP permits, a sprawling open floor plan with moving glass walls the entire length of the living room opening to the patio with phenomenal boardwalk and ocean views! The upper unit consists of 3-bedrooms, 2-baths, with STLP permits, and offers a private balcony showcasing jaw-dropping, panoramic ocean views that stretch to the horizon. There is also a 3-Car Garage great for hassle-free coastal living. Wake up to the rhythm of the tide, with the beach, the boardwalk, and lush Balboa Park right at your doorstep! This property is also conveniently located just two blocks from the historic Balboa Pier, and the lively Balboa Village, which offers eclectic shops, top-notch dining, bars, and endless seaside adventures. This isn t just a Duplex, it s a front-row seat to paradise! Schedule your tour today!Interested in this Listing?
Miami Residence will connect you with an agent in a short time.
Income Details
Structure
| Community Features: | Biking, Fishing, Park, Watersports, Sidewalks, Street Lights |
| Sewer: | Public Sewer |
| View Description: | Coastline, Ocean, Panoramic |
| Water: | Public |
Land & Parking
| Land Lease Type: | Fee |
| Parking Garage: | Garage |
Interior
| Cooking Appliances: | Microwave, Oven-Gas, Range |
| AC/Cooling: | See Remarks |
| Equipment: | Dishwasher, Microwave, Other |
| Heating: | Forced Air |
| Fireplace Rooms: | None |
| Laundry: | Other |
Exterior
| Pool: | No |
| Roof: | Tile |
| Spa: | No |
Detailed Map
Schools
Find a great school for your child



















































