| Property type: | Condominium |
| MLS #: | PW25046979MR |
| Year Built: | 2007 |
| Days On Market: | 290 |
| Listing Date: | February 27, 2025 |
| County: | Orange County |
Property Details / Mortgage Calculator / Community Information / Architecture / Features & Amenities / Rooms / Property Features
Property Details
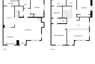
Welcome to 1442 Valencia Avenue, a Corner Unit Townhome Located in the Highly Sought After Columbus Square Community of Tustin Legacy. This Turnkey Home Showcases an Open Floor Plan with Three Bedrooms, Three Bathrooms (One Bedroom and Full Bathroom Located on the Main Floor), Upstairs Loft, Hardwood Floors, New Interior Paint, and Natural Light Throughout. The Living Room Features Soaring Two Story Ceilings, a Cozy Fireplace, and Opens to the Dining Room with Patio Access. The Kitchen Boasts Ample Counter and Cabinet Space, Quartz Counters and Backsplash, Stainless Steel Appliances, New Stainless Steel Sink and Faucet, New Garbage Disposal, and Overlooks the Dining Room. The Spacious Master Suite Showcases Plantation Shutters, Dual Vanities, Walk-In Shower, Separate Tub, and Walk-In Closet. The Second Floor Also Includes a Loft, Perfect for a Home Office Space. Indoor Laundry with Built-In Cabinets and Sink. Direct Access Two Car Garage with Storage Racks. Additional Owner Upgrades Include Upgraded Tile Floors, Upgraded Window Coverings, LED Recessed Lighting, and New Shower Heads. Enjoy the Private Gated Courtyard with No Front Neighbors. HOA Amenities Include a Community Pool, Jacuzzi, Clubhouse, Gym, and Sports Court. Award Winning Tustin Unified Schools: Legacy Magnet Academy and Heritage Elementary. Easy Access to the District and Irvine/Tustin Marketplace, 5/55/405 Freeways, and 261/241/133 Toll Roads! 1442 Valencia Avenue is a Must See!Interested in this Listing?
Miami Residence will connect you with an agent in a short time.
Mortgage Calculator
PURCHASE & FINANCING INFORMATION |
||
|---|---|---|
|
|
Community Information
| Address: | 1442 Valencia ave, Tustin, CA 92782 |
| Area: | Tustin Field |
| County: | Orange County |
| City: | Tustin |
| Subdivision: | Meriwether Association |
| Zip Code: | 92782 |
Architecture
| Bedrooms: | 3 |
| Bathrooms: | 3 |
| Year Built: | 2007 |
| Stories: | 2 |
Garage / Parking
| Parking Garage: | Direct Entrance, Garage |
Features / Amenities
| Appliances: | Microwave, Range |
| Laundry: | Inside, Room |
| Pool: | Association Pool, In Ground |
| Spa: | In Ground |
| Private Pool: | Yes |
| Private Spa: | Yes |
| Common Walls: | Attached |
| Cooling: | Central |
| Heating: | Central |
Property Features
| Directions: | Cross Streets: Valencia Ave & Tustin Ranch Rd |
Tax and Financial Info
| Buyer Financing: | Cash |
Detailed Map
Schools
Find a great school for your child

























