| Property type: | Single Family Residence |
| MLS #: | V1-28432VC |
| Year Built: | 1965 |
| Days On Market: | 283 |
| Listing Date: | March 6, 2025 |
| County: | Ventura County |
Property Details / Mortgage Calculator / Community Information / Architecture / Features & Amenities / Rooms / Property Features
Property Details
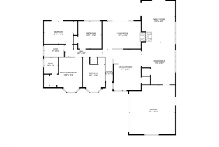
Located in the Rolling Hills Estates neighborhood, this four-bedroom home is just a walk or bike ride away from dining, shopping, the post office, grocery stores, and more. It is also just a short drive to the shops, cafes, spas, and galleries in Ojai's downtown village and the camping, fishing, and water park at Lake Casitas. This approximately 1,958-square-foot home has an open floor plan with flexible spaces, large closets, ceiling fans, a walk-in pantry, a gas fireplace with a brick hearth, and an extra-large family room with a garden window. There are also unique touches throughout that make this home stand out, such as the molding around the interior doors, wainscoting, clawfoot bathtub, two bay windows with window seats, a built-in desk and bookshelves, and a vintage O'Keefe & Merritt gas range. Outside, there is a covered patio, an additional patio, garden area, RV parking, two-car garage, drought-resistant landscaping, and a river rock walkway and borders in the front yard.Interested in this Listing?
Miami Residence will connect you with an agent in a short time.
Mortgage Calculator
PURCHASE & FINANCING INFORMATION |
||
|---|---|---|
|
|
Community Information
| Address: | 40 Almond ave, Oak View, CA 93022 |
| Area: | R1 - Ojai |
| County: | Ventura County |
| City: | Oak View |
| Zip Code: | 93022 |
Architecture
| Bedrooms: | 4 |
| Bathrooms: | 2 |
| Year Built: | 1965 |
| Stories: | 1 |
Garage / Parking
| Parking Garage: | None |
Community / Development
| Community Features: | Biking, Hiking, Park, Lake, Horse Trails, Fishing |
Features / Amenities
| Appliances: | Range |
| Laundry: | Room |
| Pool: | None |
| Private Pool: | No |
| Private Spa: | Yes |
| Common Walls: | Detached/No Common Walls |
| Cooling: | None |
| Heating: | Natural Gas |
Property Features
| Lot Size: | 6,969 sq.ft. |
| Zoning: | R1 |
| Directions: | hwy 33 heading toward Ojai, Turn right on to E. Oak View ave, second left on to High st. and will turn into Donna St. Turn left on to Almond and the house is on the right |
Tax and Financial Info
| Buyer Financing: | Cash |
Detailed Map
Active
$ 929,000
4%
4 Beds
2 Full
1,958 Sq.Ft
Lot: 6,969 Sq.Ft































