Active
$2,100,000
11%
Units
6 Beds
4 Baths
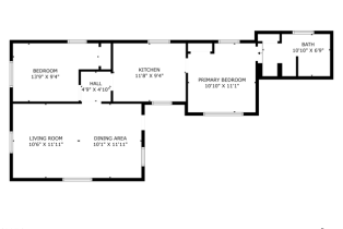
3,018 Area(sq.ft.)
Lot: 22,651 Lot Size(sq.ft.)
| Type | # of Units | Bedroom | Bath | Furnished | Rent | Actual Rent | Projected Rent |
|---|---|---|---|---|---|---|---|
| 0 | $ 0 | $ 0 | $ 0 |
| MLS #: | V1-28146VC |
| Days On Market: | 305 |
| Listing Date: | February 12, 2025 |
| County: | Ventura County |
| Property Type: | Residential Income |
| Price per ft2: | $ 696 |
| Year Built: | 1920 |
Property Details
3 single family homes! Whether you're looking for a country compound to enjoy or a terrific real estate investment without restrictions on short term rentals, this is your ideal buy. More than just a home, this lovingly restored and remodeled property comprises a 2BR/2BA plus bunk room, 1476 sq. ft. farmhouse, two 2BR/1BA cottages, and a party barn with gas fireplace just for fun. All sitting pretty on .52 acres with stunning Topa Topa views! You'll love the country touches like beamed ceilings, wood floors, barn doors, and eat-in kitchens. All newer appliances, laundry rooms, skylights, newer windows and doors, and a natural gas fireplace. Two newer hot tubs bubble softly under the stars, and each home has covered outdoor dining. One even has a fire pit with a semi-circular stone seating bench. You could live in the Farmhouse and lease out the two cottages, or lease all of them out when you're not there and invite your family and friends to join you when you want to visit, or keep all three units generating income every day of the year. You won't find a more flexible real estate investment. The compound is conveniently located at the summit between Ojai and Santa Paula, making the drive from LA easier and trips into Ojai village a breeze. There are too many fun features to list here, so call your agent today to make a convenient appointment.Interested in this Listing?
Miami Residence will connect you with an agent in a short time.
Income Details
Structure
| Community Features: | Biking, Hiking, Rural, Horse Trails, BLM/National Forest |
| Security Features: | Carbon Monoxide Detector(s), Smoke Detector |
| Style: | Cottage |
| Sewer: | Septic Tank |
| Water: | See Remarks |
Land & Parking
| Land Lease Type: | Fee |
Interior
| Cooking Appliances: | Oven-Gas, Range |
| AC/Cooling: | Ductless |
| Equipment: | Barbeque, Dishwasher, Dryer, Dryer Included, Refrigerator, Room, Washer, Washer Included |
| Heating: | Ductless |
| Fireplace Rooms: | Gas, Living Room, Other |
| Laundry: | Dryer, Dryer Included, Room, Washer, Washer Included |
Exterior
| Exterior Construction: | Stone, Stucco, Wood Siding |
| Pool: | No |
| Roof: | Composition |
| Spa: | True |
| Spa Description: | Above Ground, Fiberglass, Heated, Private |
Detailed Map
Schools
Find a great school for your child




















































